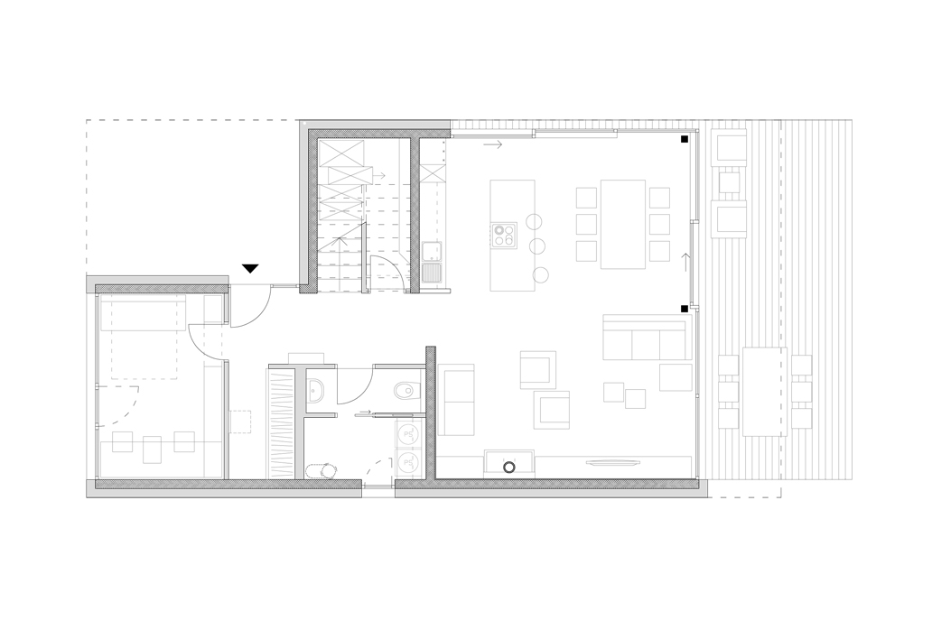
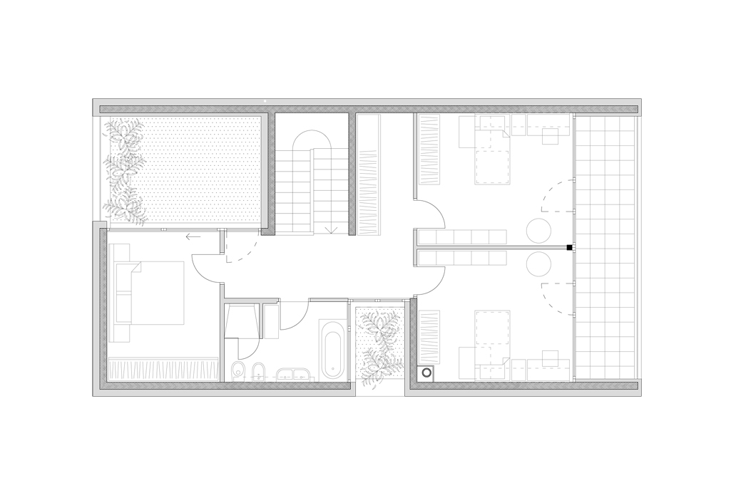
Dve hiši

Leto 2020
Lokacija Domžale, Slovenija
Tipologija Stanovanjska hiša
Merilo 165 m2
Status Izvedeno
Avtor Miha Volgemut
Foto Gregor Eržen