Kamniška Dvojčka

Leto 2004
Lokacija Kamnik, Slovenija
Tipologija Poslovno-stanovanjska
Marilo 6.120 m2
Status Izvedeno
Projektant BIZAAR d.o.o.
Avtorji Andrej Kocjan, Miha Volgemut

V južnem delu Kamnika že nekaj let nastaja »novi Kamnik«, pospešena urbanizacija pretežno stanovanjskih površin s poslovnimi parterji, v urbanem traku od Mercator centra do »Svetilnika«, vzdolž Ljubljanske in Steletove ceste.

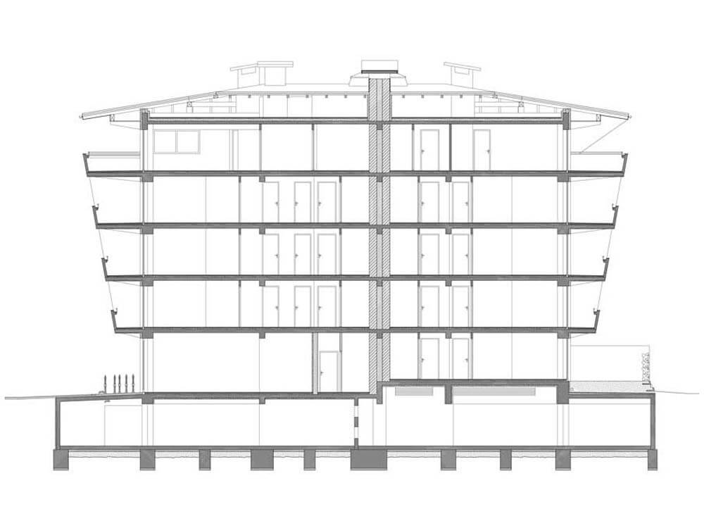
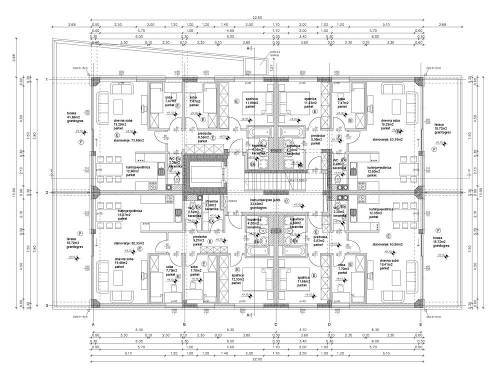
Nova stanovanjska objekta s 38 stanovanji sta locirana v notranjosti območja ob Steletovi ulici, vendar zunaj področja zazidalnega načrta. Objekt ima 1 kletno etažo ter 5 nadzemnih.

V prostor sta objekta postavljena pravokotno na ulico, in ne običajno ob-ulično, pri čemer se zaradi uličnega zavoja pahljačasto razpreta, tako da med njima nastane trikotno pol-javno dvorišče. Poleg zračnosti in svetlosti je s takšno postavitvijo dosežena še kvaliteta prehodnosti ulice, ki je odprtost proti bodočemu mestnemu parku. Glede na sosednje objekte na severu in jugu sta nova objekta višinsko usklajena kot vmesna stopnica v višini vseh treh.

Običajna mestna ob-ulična pozidava je zaradi zgoščenosti in njene ožine vedno brez teras, omenjena tipologija je nova v tem smislu, da smo potegnili terase v ulični prostor do skrajnosti (3m v mansardi), se pravi vsaka terasa v naslednjem nadstropju je konzolno globlja od prejšnje, to oblikovanje pa zagotavlja kvalitete kot so: velika intimnost stanovalcev v zelo zgoščenem prostoru ter optimalna atmosferska zaščita. Dosežen je tudi močan vizualni in kompozicijski moment v prostoru z volumni teras, ki postanejo refren ulice.