Dva vila bloka

Leto 2006
Lokacija Domžale, Slovenija
Tipologija Stanovanjska
Merilo 3.620 m2
Status Idejni predlog
Avtorji Miha Volgemut, Mateja Volgemut

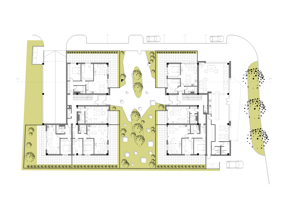
Objekt je postavljen v tipično predmestno okolje. V neposredni bližini so avtopralnica, nakupovalni center in enodružinske hiše. Kontekst je močno razklan in stihijski. Z dveh strani novi objekt obdajata relativno obremenjeni cesti.

Zaradi prometa in kaotične okolice predlagamo introvertiran kondominij z notranjim zazelenjenim skupnim parkom. Geometrijsko je objekt zasnovan na mreži rastra 8 x 8 m, iz katerega so potegnjeni bivalni volumni, ki stopničasto ustvarjajo velike zazelenjene terase posameznih stanovanj.

Objekt ima eno kletno etažo s 34 parkirnimi mesti ter tri nadzemne etaže. Nadzemni del je razdeljen na dva objekta s skupnim dvoriščem. Vzhodni objekt ima v pritličju ob cesti locirano tudi okrepčevalnico, vseh stanovanj v obeh objektih je 17.