Hiša Loft

Leto 2009 - 2011
Lokacija Domžale, Slovenija
Tipologija Enodružinska hiša
Merilo 180 m2
Status Izvedeno
Avtorji Miha Volgemut
Foto Grega Eržen

Hiša je zasnovana za mlado družino, ki se je želela preseliti iz centra Ljubljane na podeželje. Njihov življenjski slog je izrazito urban, odprt in ustvarjalen, zato je hiša rezultat simbioze podeželske tipologije s tipologijo lofta, ki ima naravo odprtega, ateljejskega, enoprostorskega bivanja, umeščenega torej v mansardno dvokapno podeželsko hišo.
Hiša stoji kot zadnja v naselju in je zato proti zahodu in severu odprta na polje, vrt pa ima na vzhodni strani. Ker na jugu prostor zapira sosednja hiša, na zahodu pa je cesta, je hiša zasnovana, da se v večji meri odpira proti vzhodu na vrt in na sever proti Kamniškim Alpam. Z okolico je pritličje torej povezano z vrtno (zasebno) teraso na vzhodu ter vhodno (odprto) verando ob cesti, pri čemer različna značaja teras dajeta hiši dodatno vrednost in odprtost.
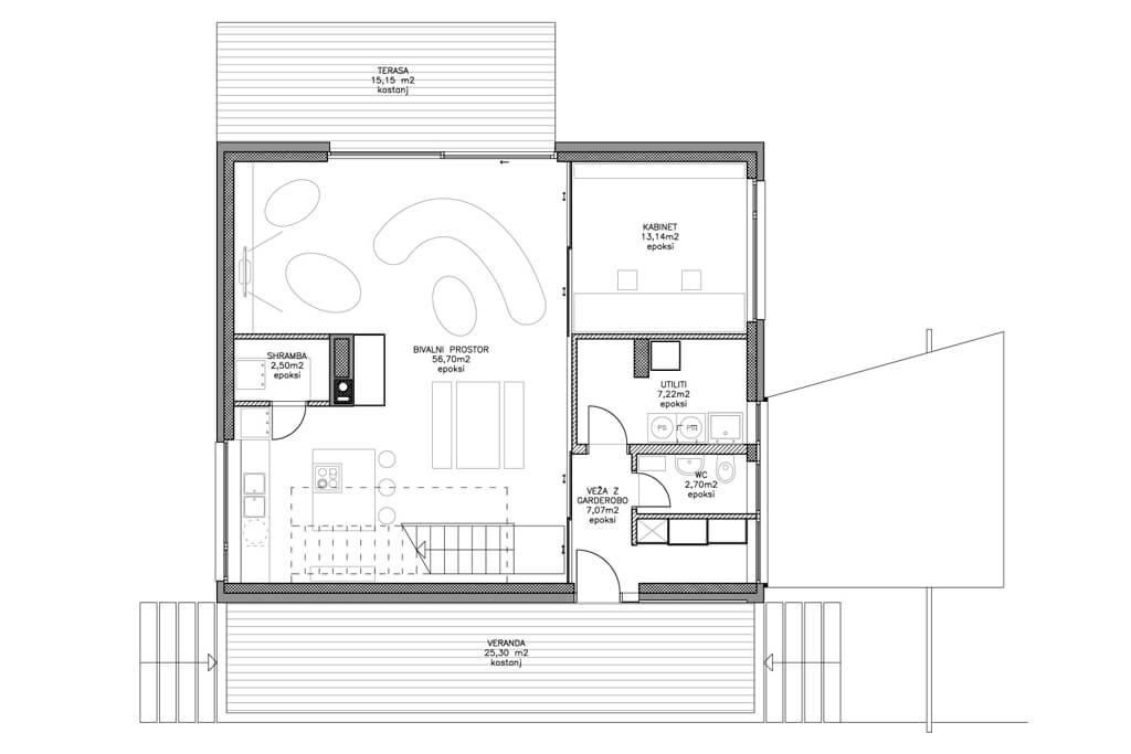
Z zahodne verande se vstopi v pritličje. Celotno pritličje, razen WC-ja, utilitija in shrambe je en odprt prostor brez nosilnih sten, ki se že takoj pri vhodu odpre tudi navzgor v mansardo. Prostor hiše je torej tlorisno in etažno kar se da zvezen in odprt, prostori se med seboj ločujejo le z lahkimi, premičnimi stenami. Vidni beton glavne stene, jeklene stopnice ter epoksi tlak v pritličju ne ustvarjajo sentimentalnosti domačega vzdušja, temveč poskušajo ustvarjati kreativno, ateljejsko vzdušje, ki služi namenu ustvariti komunikativno, odprto hišo, ki bo medij tako družinskega življenja kot tudi družabnega in kulturnega dogajanja.
Vzpon v mansardni prostor, ob ozadju vidnega betona in naravno svetlobo z neba, se nam odpre na hodnik, ki funkcionira kot galerijski prostor. Ta osrednja pojava je obogatena tudi z dnevnim gibanjem sonca po betonski steni in ustvarja spreminjajočo ambientalnost v prostoru. S hodnika se skozi niz omar vstopa v tri sobe ter na koncu v kopalnico s savno. Del lofta je tudi podest pod slemenom, ki bo služil umiku ali igri. Velika vrednost hiše je tudi balkon v mansardi z orientacijo proti zahodu in odprt proti prostranem polju. Balkon se je izkazal kot zelo primeren za večerno poležavanje pod zvezdami.